八戸小中野幼稚園の特色
八戸小中野幼稚園は、小さい幼稚園です。
そして、小さい幼稚園の良さを、たくさん持っている幼稚園です。
1.園生活の基本は、異なる年齢の子どもたちが共に過ごす全体活動です。
- 年少児は、年上の子どもたちを見てあこがれ、目標にして励みます。
- 年長児は、年下の子どもたちを世話し、配慮できるようになります。
- 異なる年齢の子どもたちが、教師の適切な配慮の中ですごし、豊かな遊びが生まれます。
- そして、年齢別のクラス活動では、発達の差を考慮しながら組まれた活動(リズム、言語、運動、制作活動等)を通し、さまざまな経験をします。
2.全職員が、全園児と関わります。
- 一人の子どもを、複数の教師の目が見守ります。
- 子どもは、多くの教師とふれ合う経験をします。
- そして、その基本は、クラス担任の教師との信頼関係です。
- 教師は、常に子どもたちについて情報を共有し、同じ姿勢で保育にあたります。
- 給食調理を担当する栄養士も給食の時間を子どもたちと一緒に過ごし、ふさわしい献立を考え、また調理を工夫しています。
3.神に愛される一人一人を大切にするキリスト教保育を行います。
- 子どもの持つ個性を受け止め、大切にします。
- できないことを否定的にとらえず共に寄り添い、一緒にどうしたらいいかを考え、工夫します。
- お互いに自分と異なる友だちを大切にしながら、共に過ごすことを学びます。
- 自分で考え行動する楽しみ、生きる喜びを見つける意欲を育てます。
- 毎日の礼拝で、見えないものの大切さを学び、お話を聞く姿勢を身につけます。
4.地域とのつながりを大切にしています。
- 幼稚園は、家庭以外に子どもたちが出会う最初の「社会」です。この幼稚園を起点にして自分たちの足で歩いていける地域に親しむことで、少しずつ広くて大きな「社会」と出会っていきます。
- 頻繁に散歩に出かけることで地域を知り、自然の移り変わりに気づけるようになります。
- 地域の小学校、中学校、青森県立八戸盲聾学校、公共施設、高齢者施設、医療機関などと連携して行事を行ったり、訪問し合う関係を持っています。
- 地域を知ることで、社会の動きや仕組み、人々の生活の多様性を身近に経験します。
この幼稚園が大切にしているのは、失敗しない力を身につけることではなく、どんなに失敗しても、立ち直る力を育てることです。そして、自分からさまざまなことに取り組む意欲を持つことです。それは、愛され、大切にされる経験から生まれます。

八戸小中野幼稚園の仕組み
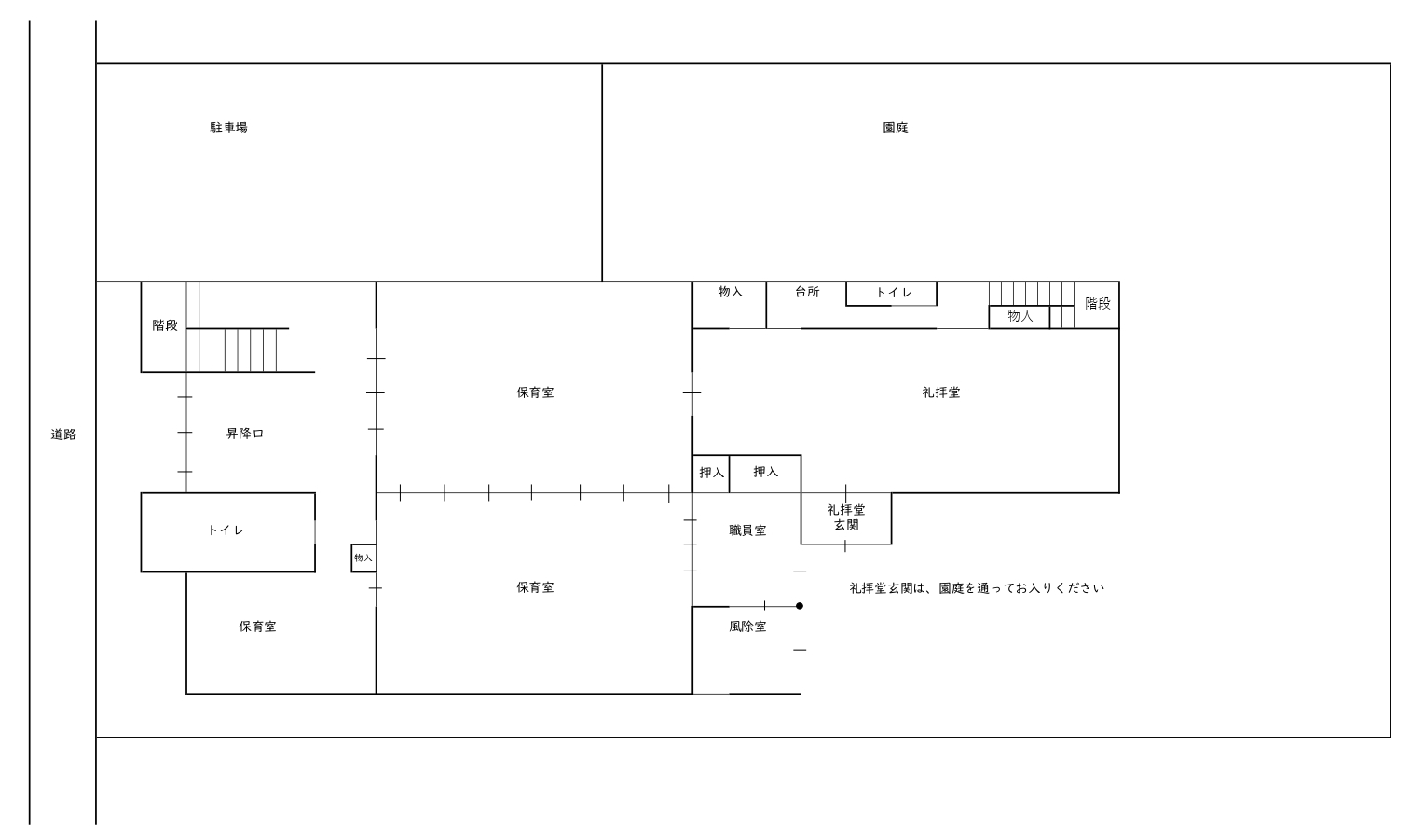
【園舎の構造】

【募集定員】
1号認定の子ども15人
【職員とクラス編成】
| 園 長 | 小林よう子(日本基督教団 八戸小中野教会牧師) |
|---|---|
| 年長(5歳児) | 1クラス 教諭1名 |
| 年中・少・特少(4,3、満3歳児) | 3クラス 教諭1名 |
| 一時預かり保育 | 1名 |
| 栄養士(給食調理) | 1名 |
| 事務 | 1名 |
| その他 | (体操講師・園医・園歯科医・学校薬剤師) |
八戸小中野幼稚園の歴史
| 1902年 (明治35年) |
八戸で聖公会(イギリス国教会)による最初の幼児教育開始。 |
|---|---|
| 1919年 (大正 4年) |
聖公会が八戸幼稚園開設。 |
| 1927年 (昭和 2年) |
聖公会が小中野(現在地)に八戸幼稚園小中野分園を開設。 |
| 1938年 (昭和13年) |
日本基督教会八戸伝道所(馬場慶一郎牧師)が小中野幼稚園を委譲される。 園長:馬場慶一郎 主任:馬場リツコ 保母:阿部英子 |
| 1939年 (昭和14年) |
馬場牧師の後任として今泉三郎牧師着任し、園長となる。 県の認可を受ける。 |
| 1943年 (昭和18年) |
教会・幼稚園・牧師館を現在地に落成。 日本基督教団設立に伴い、教会は日本基督教団八戸小中野伝道所となる。 |
| 1947年 (昭和22年) |
伝道所より教会となる。(日本基督教団八戸小中野教会) |
| 1966年 (昭和41年) |
幼稚園、教会の建物を建築。(現在の建物) |
| 1985年 (昭和60年) |
宗教法人教会付属幼稚園から、学校法人(八戸基督教学園)の幼稚園になる。 |
| 2009年 (平成21年) |
建物を改築し、保育室と礼拝堂が一階になり、牧師館が別になった。 |
| 2016年 (平成28年) |
新制度に伴い、施設型給付の幼稚園となる。 教会が駐車場を取得する。 |
| 2018年 (平成30年) | 園庭取得 |
| 2019年 (平成31年) | 2歳児保育開始 |
